Accéder au contenu principal
Réalisation
Projets
Concours
Atelier
Contact
Réalisation
Projets
Concours
Atelier
Contact
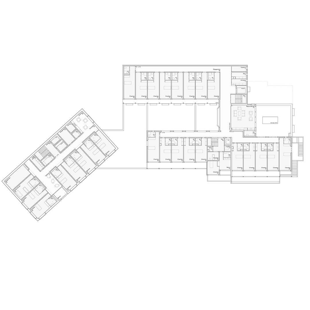
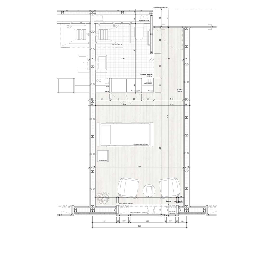
EMS ST-SYLVE
2020 - Vex
Concours agrandissement EMS
5ème prix