Accéder au contenu principal

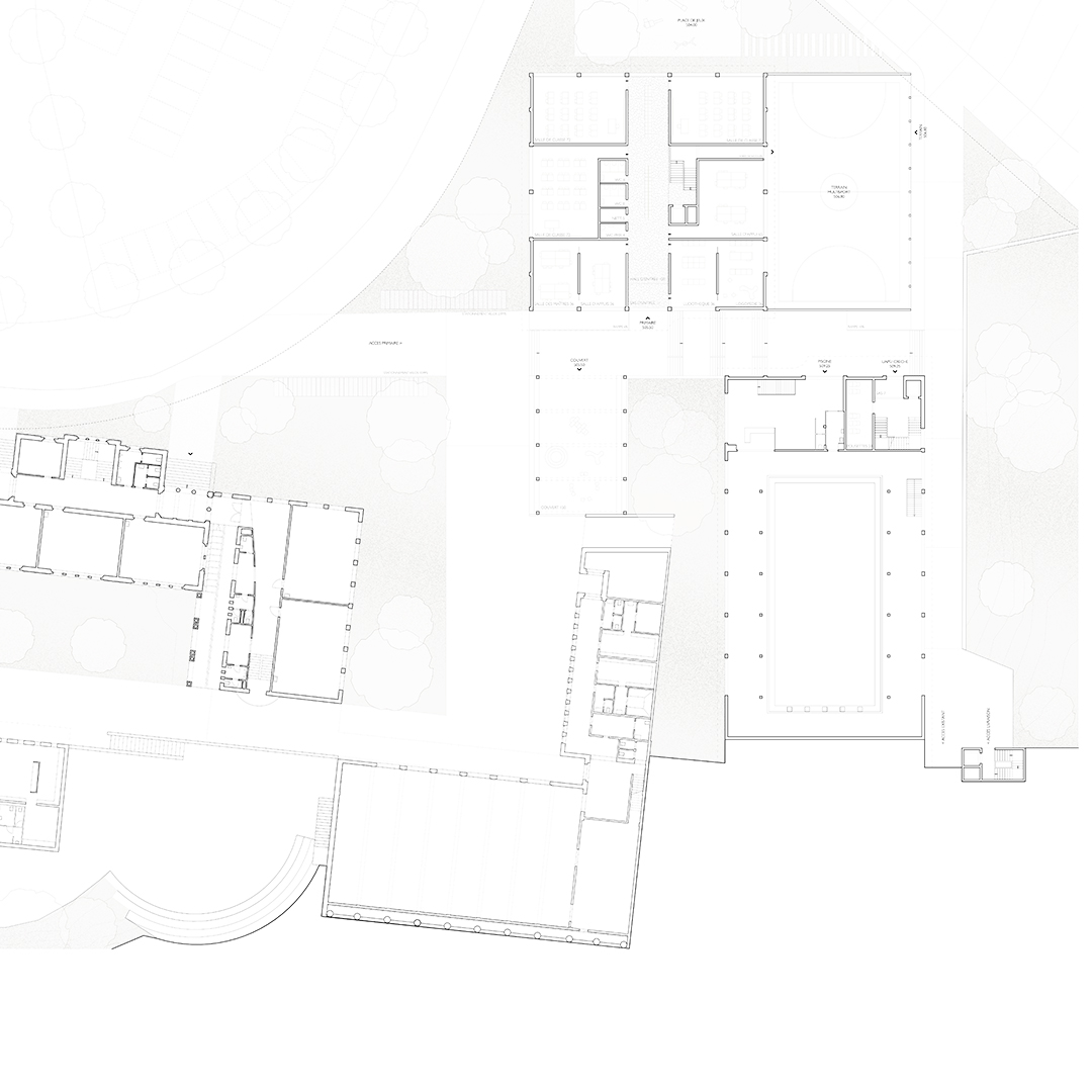
Centre scolaire

2022 - Sion

Concours pour l'agrandissement du centre scolaire de Grône

En collaboration avec JBC Architectes Sàrl