Accéder au contenu principal
Réalisation
Projets
Concours
Atelier
Contact
Réalisation
Projets
Concours
Atelier
Contact
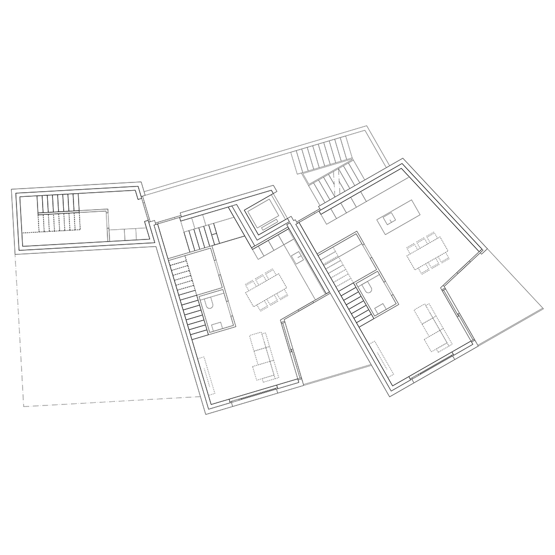
Corniche du Soleil
Projet autorisé de 3 villas à Sierre
Contact pour la vente
Dossier de vente