Accéder au contenu principal
Réalisation
Projets
Concours
Atelier
Contact
Réalisation
Projets
Concours
Atelier
Contact
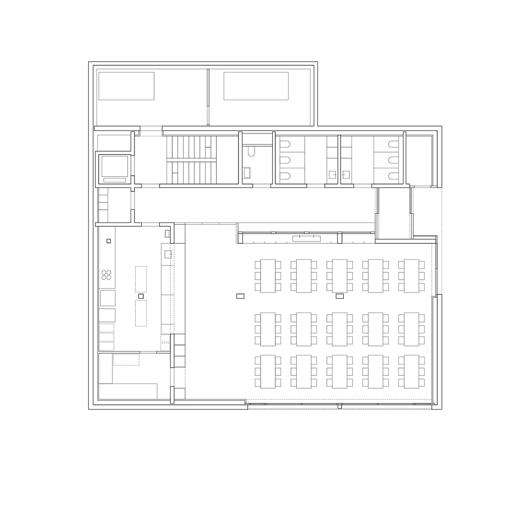
UAPE Montana-Village
Le projet comprenant un réfectoire, une UAPE et deux salles multifonctionnelles
Projet autorisé