Accéder au contenu principal

EMS Foyer Pierre-Olivier

2021 - Chamoson
Concours agrandissement EMS
5ème prix

Situation

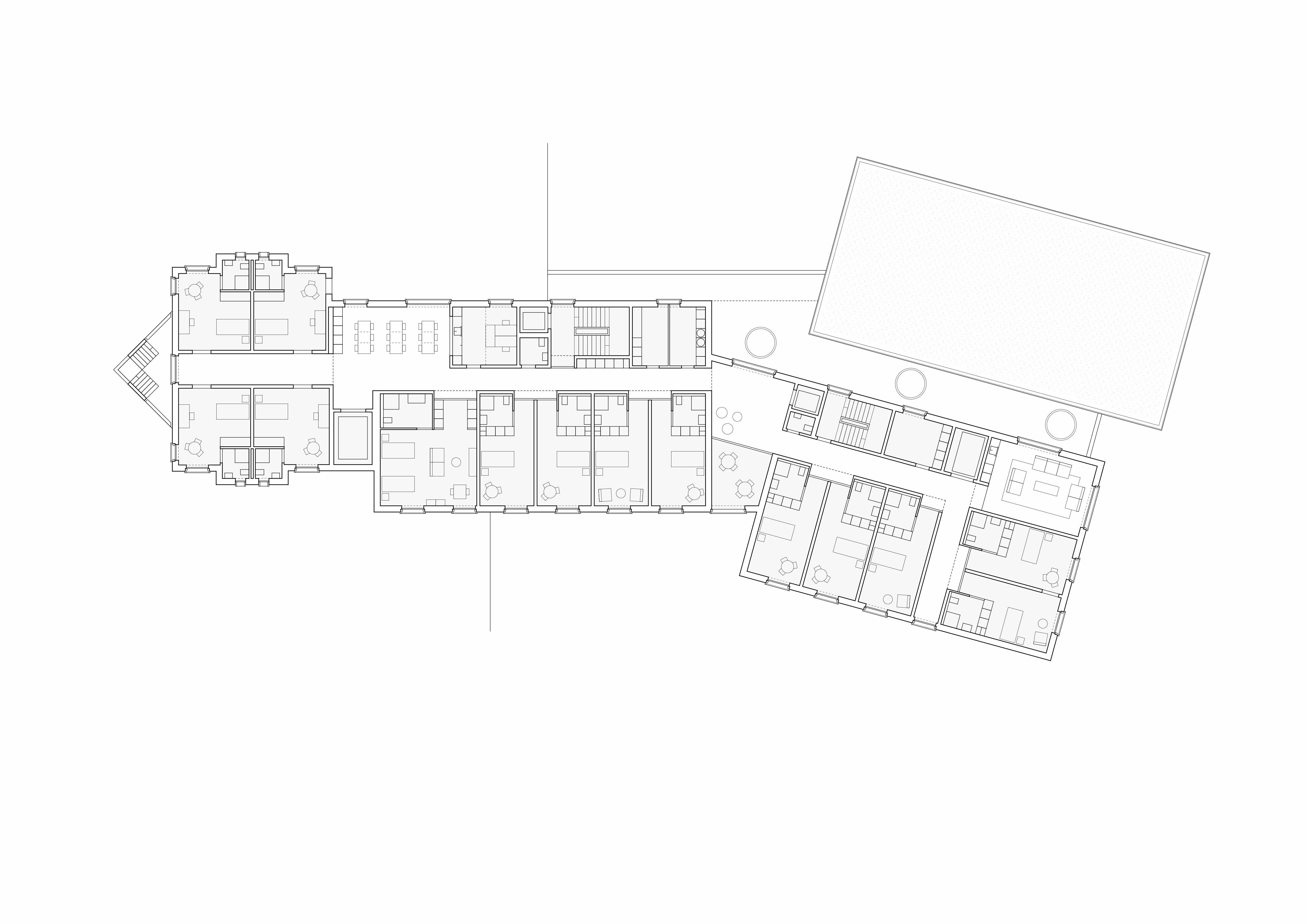
Rez-de-chaussée

Etage type

Façade Sud-Ouest

Coupe