Accéder au contenu principal
Réalisation
Projets
Concours
Atelier
Contact
Réalisation
Projets
Concours
Atelier
Contact
Villa Les
Trontieres
2021 - Randogne
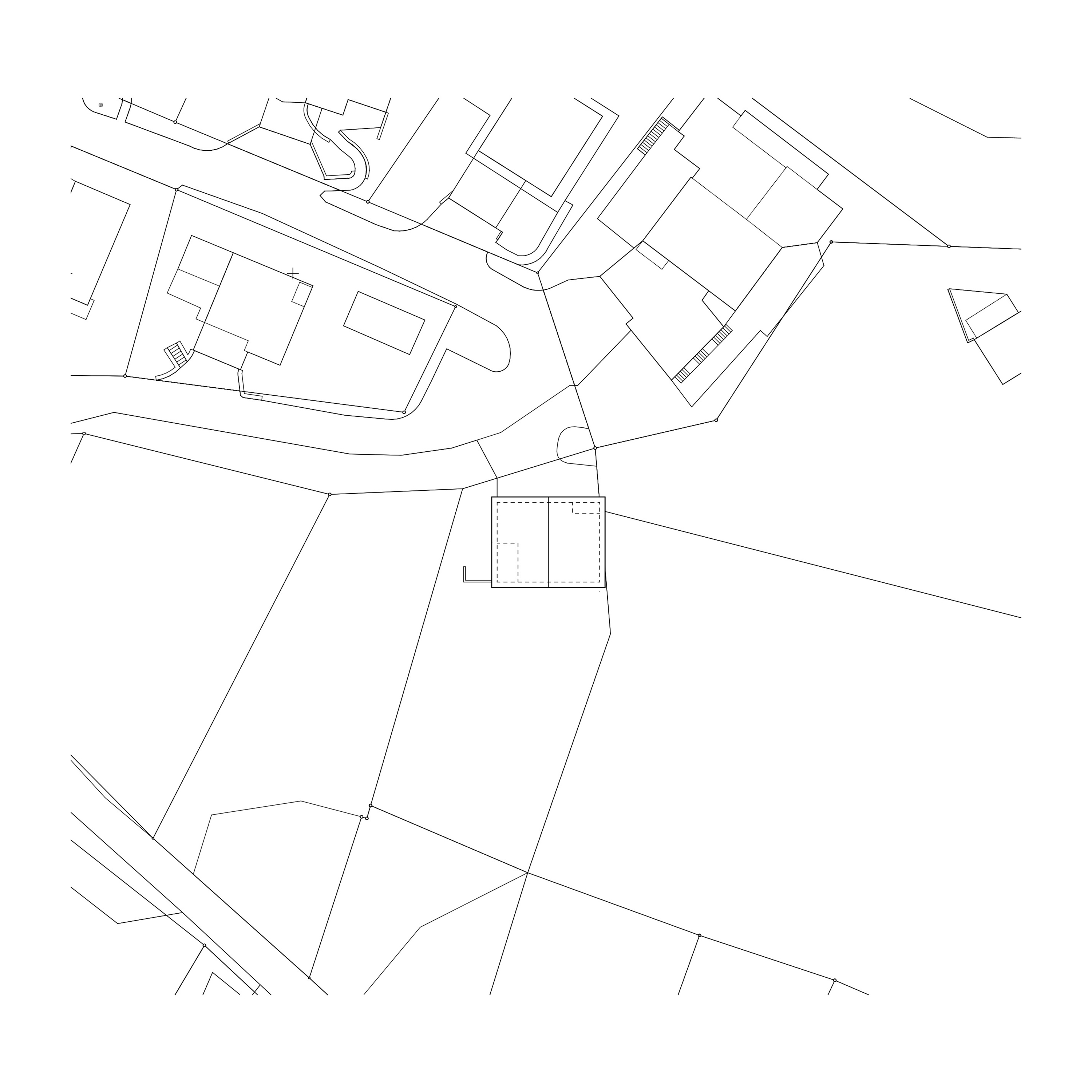
Situation
Entrée - garage
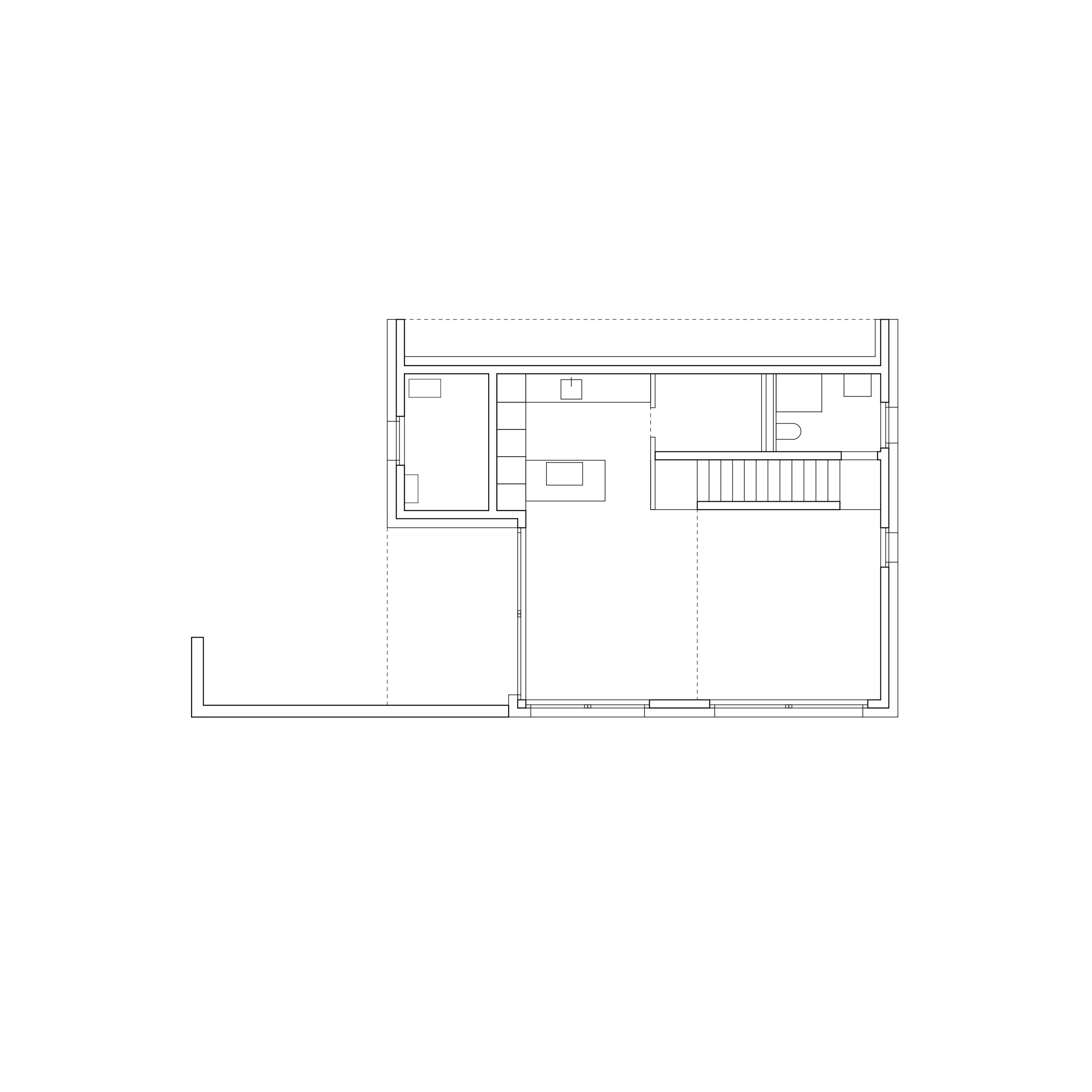
Rez-supérieur
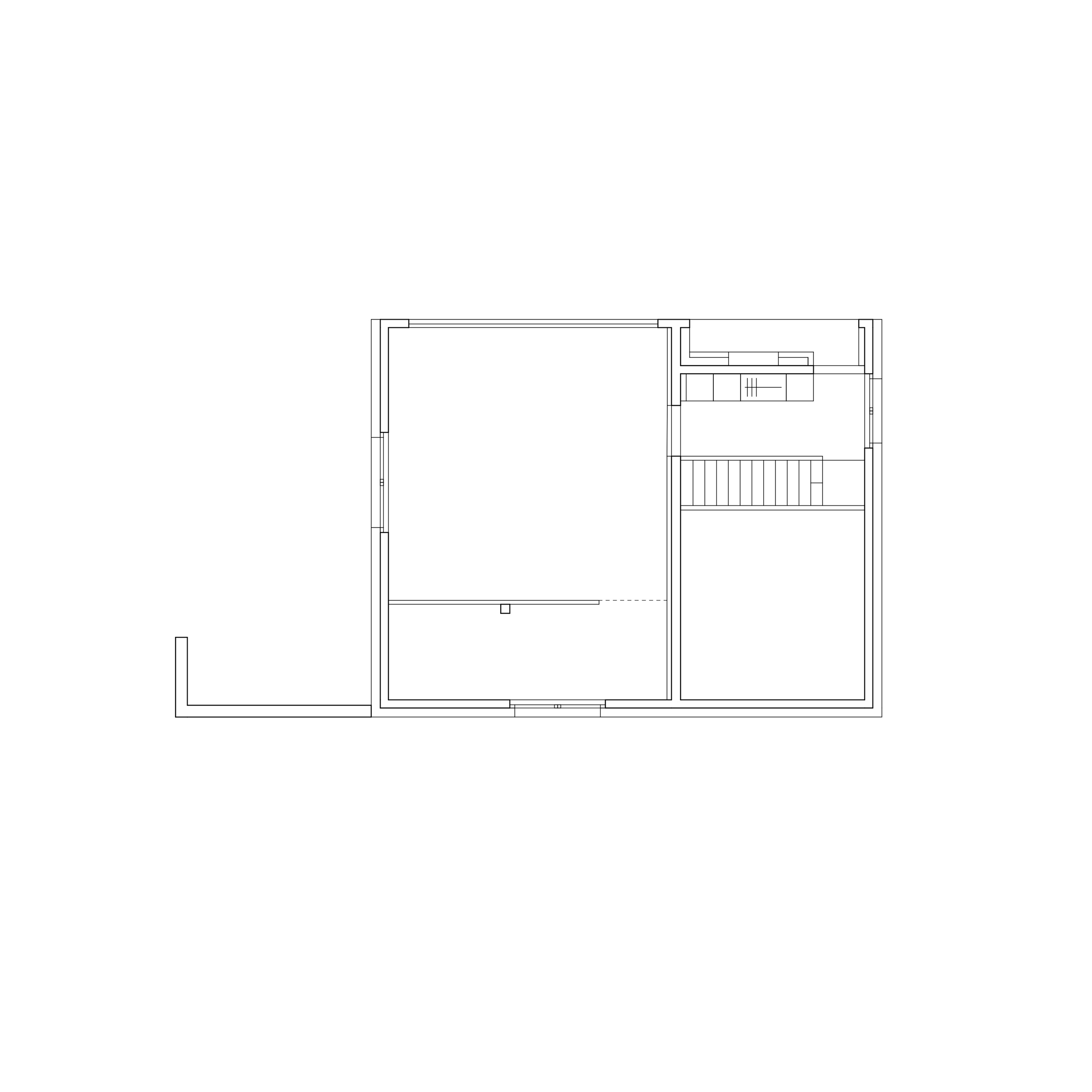
Rez-inférieur
Coupe
Façade Sud-Est